UN EDIFICIO QUE QUIERE SER MAR
TORREVIEJA
2022
Del Mar
![]()
Es un proyecto donde el entorno y la materialidad son aspectos esenciales al inicio de su narrativa. Este proyecto mira hacia su alrededor para poder definirse a sí mismo. La primera fase del proyecto de diseño comenzó con una ruta fotográfica, que ayudó a analizar el catálogo de elementos que componen los edificios vecinos. Este viaje sirvió como base para la reinterpretación de las formas que integran el paisaje urbano de la ciudad. Situado en un tejido urbano denso y con una estética muy marcada, introducir un elemento nuevo es una operación delicada, ya que implica un diálogo entre lo preexistente y lo desconocido.

Es un proyecto donde el entorno y la materialidad son aspectos esenciales al inicio de su narrativa. Este proyecto mira hacia su alrededor para poder definirse a sí mismo. La primera fase del proyecto de diseño comenzó con una ruta fotográfica, que ayudó a analizar el catálogo de elementos que componen los edificios vecinos. Este viaje sirvió como base para la reinterpretación de las formas que integran el paisaje urbano de la ciudad. Situado en un tejido urbano denso y con una estética muy marcada, introducir un elemento nuevo es una operación delicada, ya que implica un diálogo entre lo preexistente y lo desconocido.



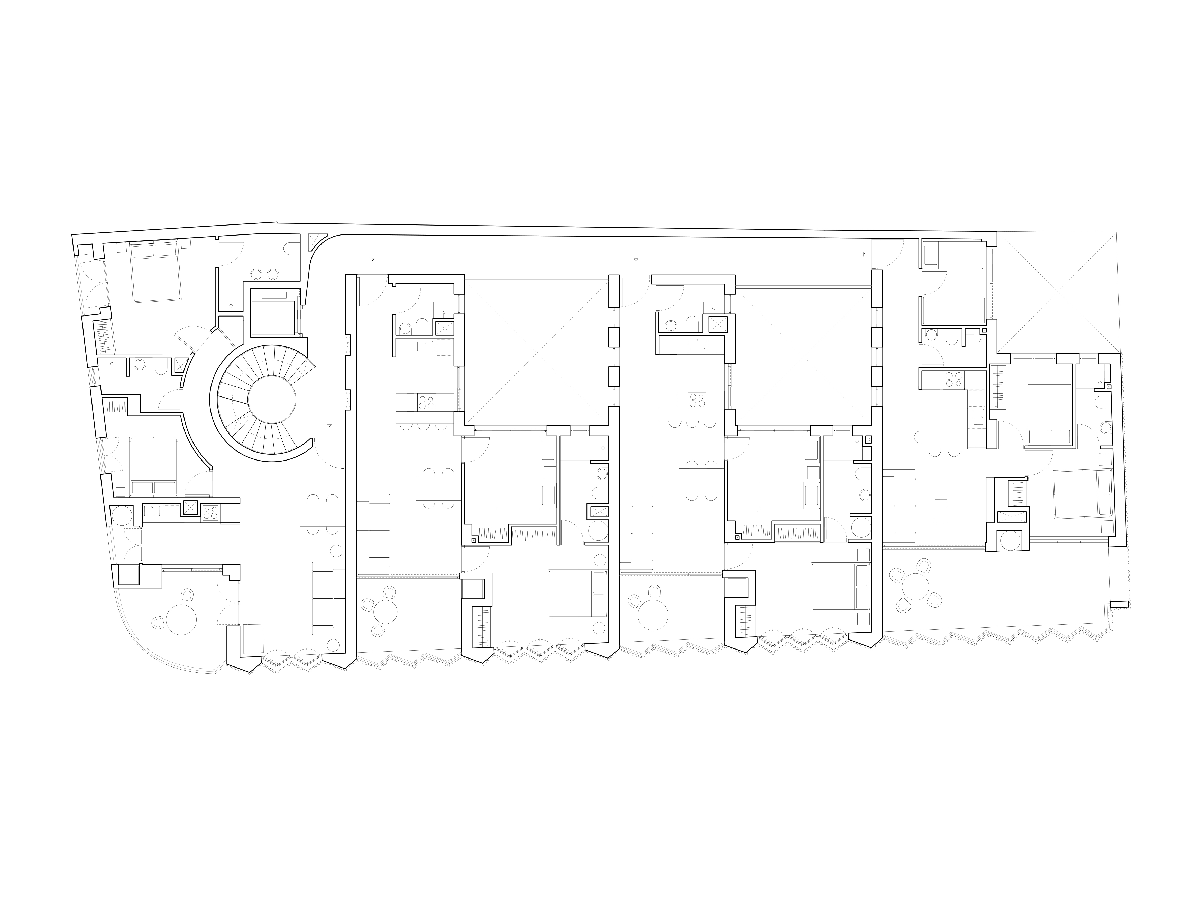
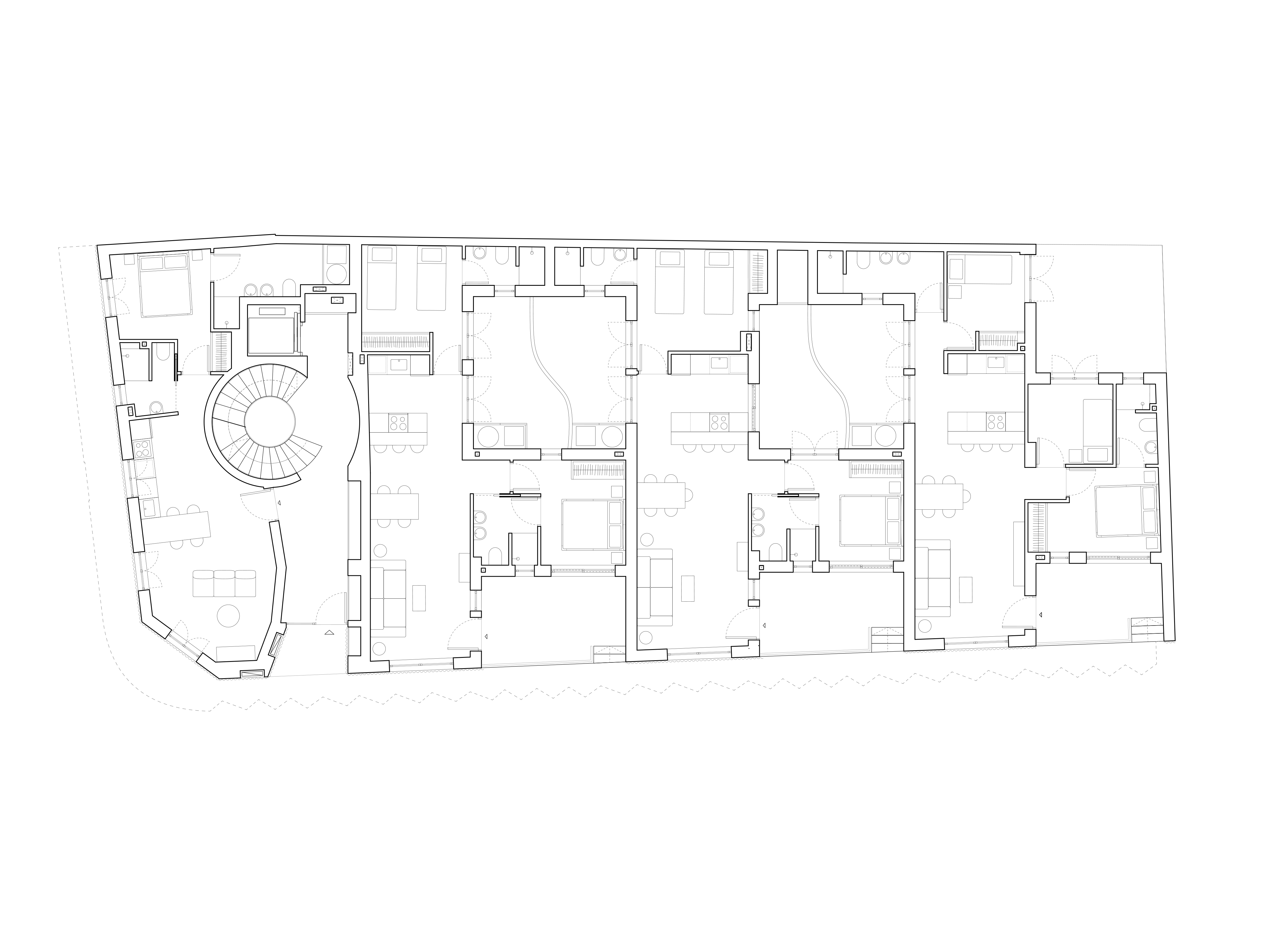
El bloque de viviendas plantea una forma particular de interactuar con el entorno, presentando la fachada como elemento conciliador entre una construcción anterior y una nueva pieza ajena. De este modo, el proyecto plantea una doble fachada que se relaciona a través de dos líneas distintas según el contexto en el que se encuentra. La fachada principal, que da acceso al edificio, muestra una fachada que se pliega en pequeñas hendiduras y se orienta hacia el sureste, proporcionando a todas las viviendas una conexión visual directa con el mar. Los ángulos cuidadosamente medidos forman dos módulos dentados que configuran las terrazas de las salas de estar y los dormitorios, permitiendo que la casa pueda abrirse al exterior. La chapa ondulada de la planta baja proporciona una identidad propia al edificio.


Por otro lado, la fachada que se recoge hacia el interior, se relaciona con construcciones de líneas más racionales. Por lo que aquí, la fachada disuelve los módulos triangulares y plantea una fachada plana, sin pretender enfrentarse a los edificios preexistentes, sino enfatizar aquellos elementos que se aprecian en los edificios más cercanos.




En el interior, las viviendas buscan poner en valor el estilo mediterráneo, promoviendo la amplitud, la luz natural y la conexión entre el interior y el exterior. Éstas, se definen gracias a una pastilla alargada que funciona como eje principal de su recorrido, desembocando en la zona de estar-comedor, el núcleo vital de la casa, a través del cual se conectan las zonas de día y de noche.


︎ ABEZ + Ricardo Cases
