CASA SOBRE CASA
ORIHUELA
2024
Casa sobre casa. Derribo y construcción para un nuevo hogar
![]()
El proyecto Casa sobre casa se origina a partir de un minucioso proceso de escucha y análisis de la vida anterior de este espacio. Las decisiones que dieron forma a esta casa se fundamentan en las experiencias de quienes la habitaron anteriormente, personas que deseaban plasmar en una pieza palpable su manera de vivir. Por lo tanto, el propósito de esta casa es otorgar un significado personal al lugar, estableciendo una conexión entre todos los elementos que la rodean.

El proyecto Casa sobre casa se origina a partir de un minucioso proceso de escucha y análisis de la vida anterior de este espacio. Las decisiones que dieron forma a esta casa se fundamentan en las experiencias de quienes la habitaron anteriormente, personas que deseaban plasmar en una pieza palpable su manera de vivir. Por lo tanto, el propósito de esta casa es otorgar un significado personal al lugar, estableciendo una conexión entre todos los elementos que la rodean.





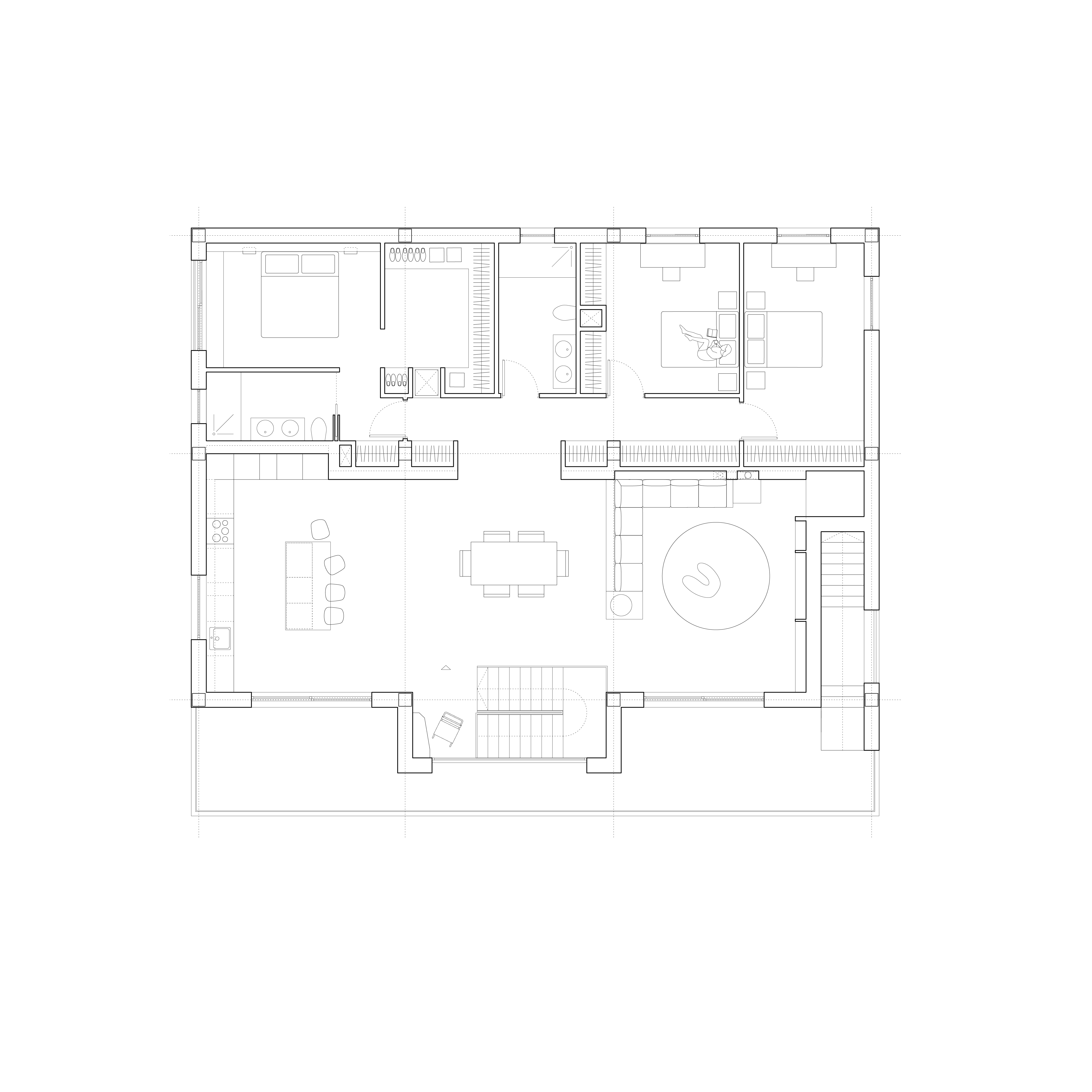
Con el fin de mantener ese carácter mediterráneo que tanto se vincula con el exterior, en planta baja, la vivienda se abre al jardín, invitando a sus visitantes a vivirla sin restricciones. Con un diseño de planta bastante abierta, unos paneles de celosía cuadrada enmarcan las vistas al jardín, mientras que un volumen más sólido aloja una zona de servicios y un salón cerrado. Esto crea un espacio que se extiende hacia el exterior, fomentando la vida al aire libre y difuminando las fronteras entre el interior y el exterior de la casa.



El volumen superior, en la planta principal, dibuja la casa, con una zona diáfana que conecta de manera fluida la cocina, el comedor y la sala de estar, permitiendo que las vistas de las montañas más lejanas se acerquen a través de las amplias puertas correderas en el porche frontal. La zona de descanso, compuesta por una tira de dormitorios en serie, se desplaza hacia un segundo plano, retirándose para el recogimiento. Dado que esta parte alberga los espacios más íntimos de la casa, las habitaciones enmarcan de una forma más directa el paisaje montañoso de la parte trasera.










︎ ABEZ
